
咨詢熱線
137-2866-5346▌ 工藝分析
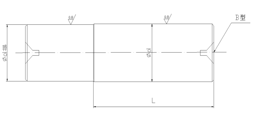
根據圖樣提供的技術要求,工件采用無縫鋼管進行加工,內孔和外壁的表面粗糙度為Ra1.6μm,用車削可達到,但內孔的圓柱度為0.03mm,對于石墨制品薄壁零件來講要求較高。在批量生產中,工藝路線大致為:下料——熱處理——車端面——車外圓——車內孔——質檢。
“內孔加工”工序是質量控制的關鍵。我們拋開外圓、薄壁套管就內孔切削來說就難保證0.03mm的圓柱。
▌ 車孔的關鍵技術
車孔的關鍵技術是解決內孔車刀的剛性和排屑問題。增加內孔車刀的剛性,采取以下措施:
(1)盡量增加刀柄的截面積,通常內孔車刀的刀尖位于刀柄的上面,這樣刀柄的截面積較少,還不到孔截面積的1/4,如下左圖所示。若使內孔車刀的刀尖位于刀柄的中心線上,那么刀柄在孔中的截面積可大大地增加,如下右圖所示。

(2)刀柄伸出長度盡可能做到比加工工件長度長5~8mm,以增加車刀刀柄剛性,減小切削過程中的振動。
▌ 解決排屑問題
主要控制切削流出方向,粗車刀要求切屑流向待加工表面(前排屑),為此采用正刃傾角的內孔車刀,如下圖所示。

精車時,要求切屑流向向心傾前排屑(孔心排屑),因此磨刀時要注意切削刃的磨削方向,要向前沿傾圓弧的排屑方法,如下圖所示精車刀合金用YA6,目前的M類型,它的抗彎強度、耐磨、沖擊韌度以及與鋼的抗粘和溫度都較好。

刃磨時前角磨以圓弧狀角度10°-15°,后角根據加工圓弧離壁0.5-0.8mm(刀具底線順弧度),c切削刃角k向為§0.5-1為沿切屑刃B點修光刃為R1-R1.5,副后角磨成7°-8°為適,E內刃的A-A點磨成圓向外排屑。
▌ 加工方法
(1)加工前必須要做一件護軸。護軸主要目的:把車好的薄壁套內孔以原尺寸套住,用前后頂尖固定使它在不變形的情況下加工外圓,保持外圓加工質量、精度。所以,護軸的加工對加工薄壁套管的工序是關鍵環節。
加工護軸毛胚用45﹟碳結構圓鋼;車端面、開兩頭B型頂尖孔,粗車外圓,留余量1mm。經熱處理調質定形、再精車留0.2mm余量研磨。重新熱處理碎火表面,硬度HRC50,再經外圓磨床磨成如下圖所示,精度達要求,完工后待用。

(2)為能使工件一次性加工完畢,毛胚留夾位和切斷余量。
(3)先把毛胚作熱處理調質定形,硬度為HRC28-30(可加工范圍的硬度)。
(4)車刀采用C620,首先把前頂尖放進主軸錐位固定,為防止夾薄壁套時的工件變形,增加一個開環厚套,如下圖所示。

為保持批量生產,薄壁套管外圓的一頭經加工為統一尺寸d,t的尺是軸向夾位,個薄壁套管壓緊,提高車內孔時的質量,保持尺寸。考慮到有切削熱產生,工件膨脹尺寸難掌握。需要澆注充分的切削液,減少工件的熱變形。
(5)用自動定心三爪卡盤將工件夾牢,車端面,粗車內圓。留余量0.1-0.2mm精車,換上精車刀把要切削余量加工到護軸滿過度配合和粗糙度的要求。卸下內孔車刀,插入護軸至前頂尖,用尾座頂尖按長度要求夾緊,換外圓車刀粗車外圓,再精車達圖樣要求。經檢驗合格,用切斷刀按長度要求尺寸切斷。為使工件斷開時的切口平整,刀刃口要斜磨,使工件端面平整;護軸磨小的一段就是為了切斷留有空隙而磨小,護軸為減少工件變形,防止振動,以及切斷時掉下碰傷原故。
▌ 結論
以上方法加工石墨制品薄壁套管,解決了變形或造成尺寸誤差和形狀誤差而達不到要求的問題,實踐證明加工效率較高,易于操作,并且適合加工較長的石墨制品薄壁零件,尺寸易掌握,一次性完工,批量生產也較實際。
本文出自深圳市石金科技股份有限公司,公司是集銷售、應用開發,產品加工的石墨專業廠家,專門為模具行業、機械行業、真空熱處理爐、電子半導體及太陽能光伏產業等提供石墨材料、石墨電極和相關的石墨制品,歡迎致電13662687390